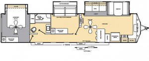
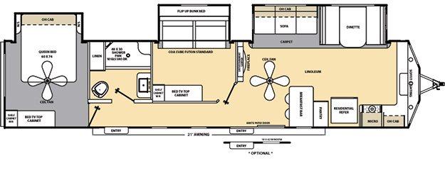
CD-39FKTS_Floorplans