Home
Trailers
Brochure
Parts
Contact
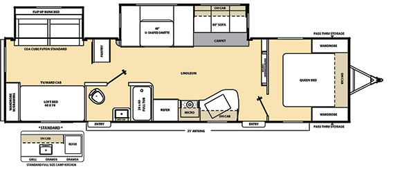
C-323BHDSCK_Floorplan